VENUS - Gemotoriseerde poortsluiter met schuifarm voor draaipoorten voor voetgangers - Zwart

https://www.sea-team.be/web/image/product.template/14817/image_1920?unique=ee07728

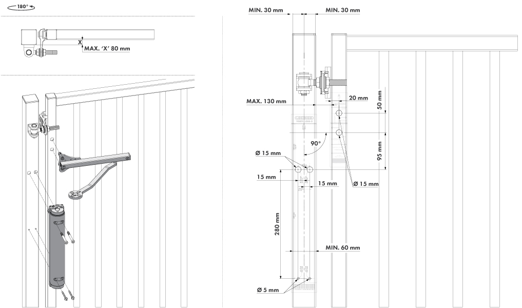
De Verticlose-2 poortsluiter is de topversie binnen het Verticlose productgamma. Uiterst veelzijdig en met uitstekende eigenschappen, Verticlose-2 is de perfecte poortsluiter voor zowel 90° als 180° scharniersituaties. De geïntegreerde voorspanning, continue regelbaarheid van snelheid & eindslag en Quick-Fix bevestiging garanderen een snelle en efficiënte installatie. De esthetische geanodiseerde aluminium poortsluiter met high-tech interne componenten garandeert een uitzonderlijk lange levensduur. We raden de Lion-VTC Drill aan voor een nog efficiëntere installatie.

  • Continue regelbaarheid van snelheid & eindslag
  • Inclusief railset voor 90° en 180° situaties
  • Krasvaste en roestvrije geanodiseerde aluminium behuizing
  • Esthetisch & compact design
  • Geïntegreerde voorspanning voor extra vlotte installatie
  • Sluitkracht over de volledige 180° openingshoek
  • Stevige bevestiging dankzij gepatenteerde Quick-Fix
  • Lage weerstand bij openen: Max. 25 Nm

 

Not Available For Sale

Deze combinatie bestaat niet.

Terms and Conditions
30-dagen geld terug garantie
Verzending: 2-3 werkdagen